
摘 要:隨著全球能源結構的轉型和可再生能源的快速發展,儲能技術逐漸成為調節能源供需、提高能源利用效率的關鍵環節,在這一背景下,分布式儲能系統應運而生,成為應對能源不穩定性與波動性的有效手段。分布式儲能借助小型化、模塊化的儲能設備,能夠在用戶端進行能量的存儲與釋放,從而實現對局部電網的靈活調節,這種系統不僅能夠有效平衡可再生能源(如太陽能和風能)在發電過程中的間歇性和不穩定性,還能在電力需求高峰時提供可靠的電力支持,減輕對電網的壓力。本文介紹了安科瑞Acrel-1000DP分布式儲能監控系統在浙江嘉興晉億實業5MW分布式儲能項目中的應用,該系統優化了企業的能源管理,可以有效降低電力成本、確保生產活動的連續性和穩定性。
關鍵詞:分布式儲能;可再生能源;能源管理
1 項目概述
晉億實業股份有限公司位于浙江省嘉興市嘉善縣惠民街道松海路66號廠區,屬于220kV東云變供區,由東云變35kV晉流683線供電。
晉億實業5MW分布式儲能項目(以下簡稱“本項目")是某新能源科技有限公司在晉億實業廠區內空地新建的一期規模為5MW/10MWh的鉛碳電池儲能系統(已取得備案2401-330421-04-01-898044),接入晉億實業股份有限公司配電房10kV母線。儲能系統平時用以給晉億實業股份有限公司廠區日常生產負荷削峰填谷,運行模式為每天固定時間“兩充兩放",充電時間為0:00-7:00、11:00-13:00,放電時間為9:00-11:00、15:00-17:00,正常情況下儲能系統所放電量“自發自用,不上網"。
2 配電房現狀
晉億實業股份有限公司廠區內建設有35kV配電房1座,變壓器2臺,1#主變容量12500kVA,2#主變容量5000kVA,10kV采用單母分段接線模式。
負荷方面,2023年晉億實業股份有限公司年至大下送功率約14.4MW,至大負載率約為82.44%,年平均負載率約68.57%;電源方面,晉億實業目前已有5.03MWp光伏接入10kVI段母線上,通過1#主變上傳至35kV晉流683線。

圖2.1配電房現狀電氣主接線
3 分布式儲能設計
本項目在嘉善縣惠民街道松海路66號晉億實業廠區配電房東南側空地位置建造5MW/10MWh儲能項目工程,距離晉億實業股份有限公司距離約100米。
儲能單元由儲能一體柜、變壓器、匯流站組成。本項目配置儲能容量為186kW/372kWh的磷酸鐵鋰儲能一體柜27臺,3000kVA變壓器1臺,2500kVA變壓器1臺,并建設一座10kV開關艙。本次15套186kW/372kWh(即2790kW/5580kWh)的磷酸鐵鋰儲能一體柜接入1臺3000kVA升壓變,12套186kW/372kWh(即2232kW/4464kWh)的磷酸鐵鋰儲能一體柜接入1臺2500kVA升壓變,將直流電逆變為690V交流電,升壓變高壓側以10kV電壓等級接入2座10kV開關艙的進線柜。

圖3.1 儲能站接入電氣主接線圖

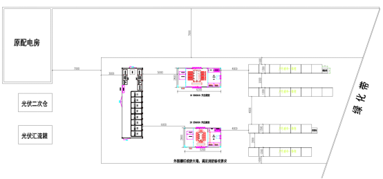
圖3.2 儲能站平面布置圖
4 技術方案
晉億實業股份有限公司為高耗能企業,用能需求較大,建設用戶側儲能電站能夠降低企業能耗,控制企業成本。為了做到新建儲能電站不向電網倒送電,同時實現策略優化功能,本項目引入了Acrel-1000DP分布式儲能監控系統。
儲能10kV開關艙進線柜配置線路保護裝置,做到階段式方向過流保護;并網柜配備防孤島保護裝置,在非計劃孤島情況下使儲能系統脫離電網側;就地箱變配備箱變測控裝置,實時監測變壓器的運行狀態,收集電流、電壓、溫度等關鍵參數,并通過數據分析及時發現潛在故障,同時裝置也支持遠程監控和數據傳輸。
儲能電站接入系統后,接入嘉善調度。本項目采用光纖以太網技術通信方式,光纜線路為:晉億實業儲能電站—光通信—東云變—光通信—嘉善供電公司,儲能站接入光纖須配置光端機、路由器以及電力專用縱向加密裝置。
4.1. 安全自動裝置
1)AM6-FE頻率電壓緊急控制裝置
裝置能夠實時監測電網的頻率和電壓,一旦檢測到超出設定范圍的異常情況,立即啟動控制策略,通過調整發電機出力、切除部分負荷或投入補償設備等方式,快速恢復電網的頻率和電壓至正常水平,確保電力供應的連續性和可靠性。
2)AM5SE-IS防孤島裝置
在電網失電的情況下,分布式電源未能夠及時與電網斷開連接,會形成孤島狀態,這種狀態可能造成分布式電源不可控、電網恢復時的電壓和頻率不匹配等問題,也可能導致電力工作人員在不知情的情況下進行危險的操作。防孤島裝置通過實時監測電網狀態,一旦檢測到電網斷電,能夠在規定的時間內迅速切斷分布式電源與電網的連接,從而保障電網的安全運行和維修人員的人身安全。
3)防逆流保護裝置
當儲能電站釋放的電能超過本地負荷需求時,多余的電能可能會流向電網,形成逆流。防逆流保護裝置能夠實時監測電流方向和大小,一旦檢測到逆流現象,便迅速動作,通過切斷相關電路或調整儲能系統的輸出功率,防止電能向電網反送,保障系統的安全與穩定。
4.2. 箱變測控裝置
AM6-PWC箱變保護測控裝置是針對光伏及風能等升壓變不同需求而研發的集成化設備,兼具保護、測控與通訊功能,適用于高低壓兩側分支接線的應用場景。裝置具備差動保護、過流保護、過電壓保護等多項關鍵保護功能以及輕瓦斯、重瓦斯、高溫等非電量保護,圖形化界面和簡易的操作方式使得裝置的使用和管理較為便利,通過和后臺監控軟件相結合,裝置能夠充分發揮保護裝置的遙測遙信和遙控遙調功能。
4.3. 電能質量在線監測
APView500PV電能質量在線監測裝置采用了高性能多核平臺和嵌入式操作系統,可以實時獲取電力系統中的關鍵參數,具備諧波分析、波形采樣、電壓暫降/暫升/中斷、閃變監測、電壓不平衡度監測、事件記錄、測量控制等功能;裝置上可以查看實時波形與故障波形,幫助用戶進行故障分析,優化電力使用,降低設備損壞風險,從而提升整體電力系統的運行效率和可靠性
5 系統結構
本項目系統結構采用分層分布式架構,能夠穩定地運行,滿足現代工業自動化的需求,為企業提供強有力的技術支持,主要分為站控層、通信層和設備層三個核心部分:
站控層作為系統的管理與控制中心,承擔著對整個系統的集中監控和管理功能。操作員可以通過該層實時監測系統狀態,進行數據分析與處理。
通信層負責信息傳遞與數據交互,確保各個設備和系統組件之間能夠無縫連接與協同工作。此層不僅支持多種網絡拓撲結構,還能夠根據實際應用場景的不同規模和需求進行靈活調整,增強了系統的靈活性和可擴展性。
設備層包含各種硬件設備,是系統的基礎執行單元。這些設備不僅負責實時采集現場數據,還能根據上級指令執行控制操作,是實現自動化操作的核心組成部分。

圖5.1系統拓撲圖
項目配置設備清單如下表所示:
表5.1 方案設備列表


6現場圖片

7 系統功能
7.1. 系統總覽
主要展示本系統的儲能裝機容量、儲能當前充放電量、收益、SOC變化曲線以及電量變化曲線。

圖7.1 系統總覽
7.2. PCS監控
PCS作為儲能系統與電網之間的橋梁,負責控制電池的充放電過程,將電池存儲的直流電能轉換為交流電能,或者將交流電能轉換為直流電能以存儲在電池中。系統監測顯示PCS的運行狀態、運行參數限值,交直流側的運行狀態、運行參數數據,系統對PCS的監控是確保儲能系統安全運行的關鍵。

圖7.2 PCS狀態監測界面
7.3. 電池監控
系統的電池監控是確保電池組安全運行的關鍵。通過實時監測電池的電壓、電流、溫度等關鍵參數,電池管理系統(BMS)能夠及時調整電池的工作狀態,延長電池的使用壽命,并提高整個系統的效率和安全性。

圖7.3 電池簇監控界面
8 總結
在當前能源轉型的背景下,分布式儲能系統與新能源發電的結合,正逐漸成為電力市場中一種重要的解決方案。通過合理設計控制策略,系統能夠有效地與電網價格進行互動,實現峰谷套利和平滑輸出,從而提升整體電力系統的經濟性和穩定性。此外,隨著智能電網技術的發展,系統的控制策略可以進一步優化,這種基于大數據和人工智能的控制方式,將為分布式儲能的經濟效益和操作效率提供強有力的支持。總的來說,分布式儲能系統結合新能源發電的解決方案,不僅為電力市場帶來了新的盈利模式,也為實現可持續發展目標貢獻了重要力量。
聯系我們
江蘇安科瑞電器制造有限公司 公司地址:江陰市南閘鎮東盟工業園區東盟路5號掃一掃 更多精彩
微信二維碼
微信公眾號